ΠΛΗΡΟΦΟΡΙΕΣ
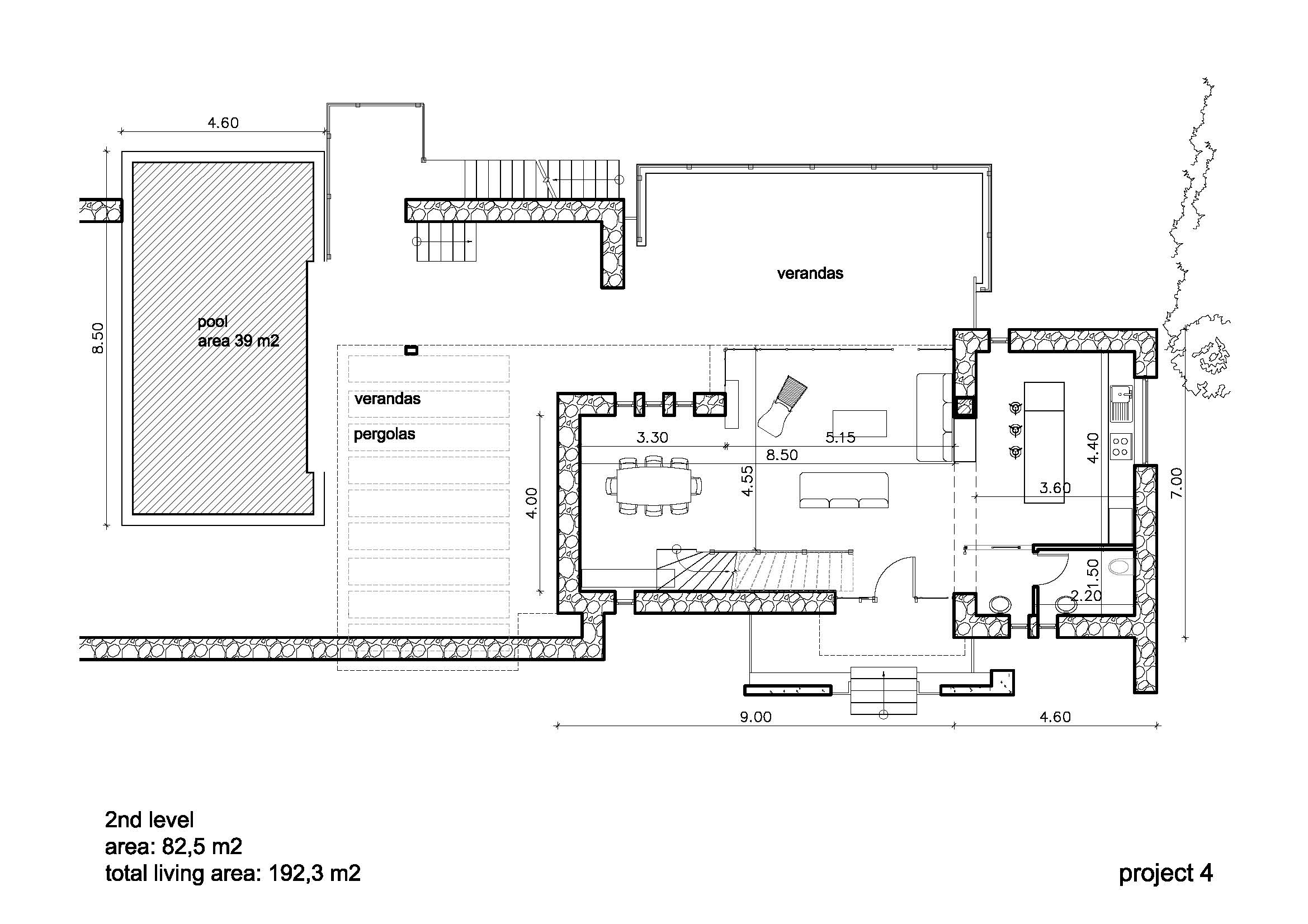
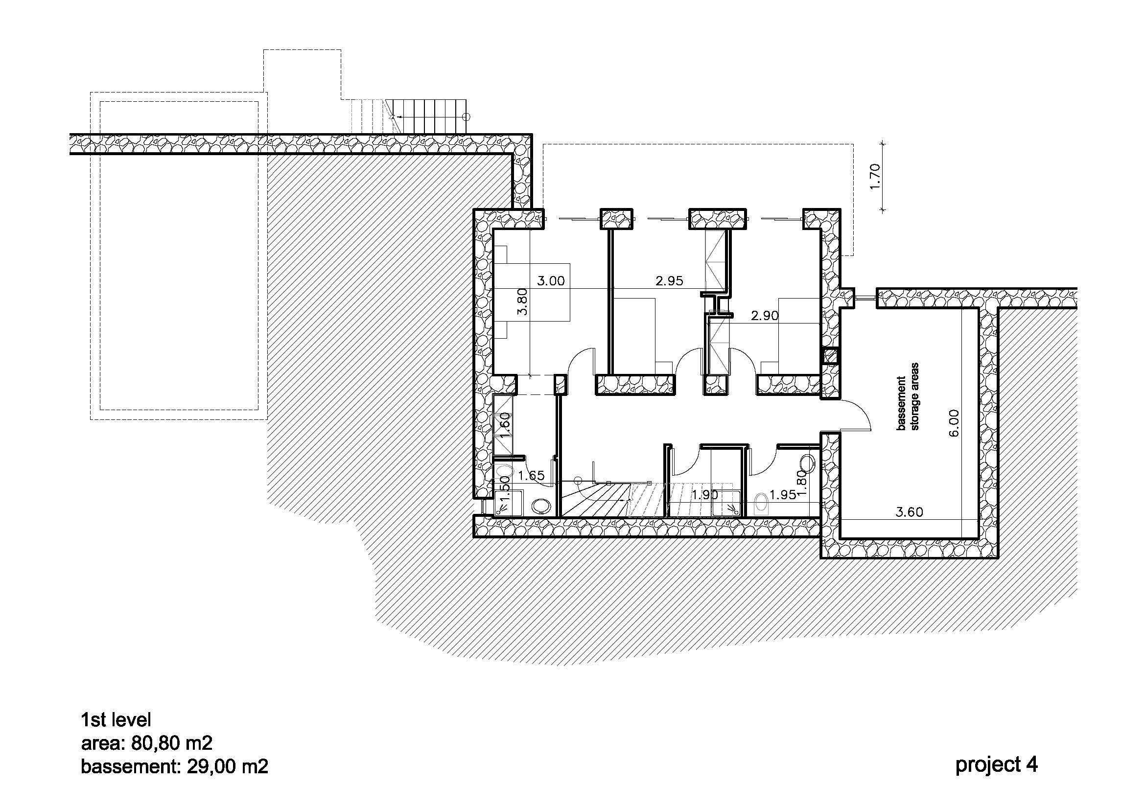
FLOORS : 3 & BASEMENT
MAIN AREAS: 208,4m² / BASEMENT: 66,6m²
COVERED VERANDAS AREAS: 25,20 m²
TOTAL AREA: 300,18m²
POOL AREA: 73,60m2 ( + baby pool /Jacuzzi)
PERGOLA AREA: 25,00m²
BEDROOMS: 6 / BATHROOMS: 4
 

 

Σχετικα με το Artect

Είμαστε τεχνικό γραφείο απαρτιζόμενο αποκλειστικά από πτυχιούχους μηχανικούς που αναλαμβάνουμε την μελέτη και υλοποίηση κατασκευών υψηλών απαιτήσεων με ανταγωνιστικότερες και ποιοτικότερες συμφωνίες προκειμένου για να εξυπηρετήσουμε πελάτες ειδικών απαιτήσεων σε λογικές τιμές.

Επικοινωνία

Τηλ: 6973 77 8 999
Fax: 2821 0 69774
Ηλεκτρονική Διεύθυνση
eva@artect.gr
info@artect.gr
Διεύθυνση Γραφείου
25ης Μαρτίου 1 - ΤΘ 725
Κουνουπιδιανά - ΤΚ 73142
Χανιά - Κρήτη

Χάρτης

Τελευταία Νέα